Fremtidens familiebolig

Renovering & Restaurering

Genoprettelse af gamle bygninger, nyindretning og transformering

Krarup Hansen & Co. yder rådgivning i alle byggeriets faser med ombygninger af gamle bygninger, herunder også med fredede bygninger hvor kulturarven skal respekteres og behandles på en bæredygtig måde, der tilgodeser myndigheder og bygherrens ønsker og krav.

Vi restaurer, ombygger, tilbygger og transformere bygninger med udgangspunkt i gode bæredygtige løsninger der respekterer det gamle håndværk og materialer. Vi implementerer nænsomt nye moderne løsninger til brandsikring, isolering og energioptimering mv. i respekt for de autentiske bygninger og bebyggelser.

Arkitektur i forbindelse gamle og fredede bygninger og bygningsmiljøer

Ved at genskabe arkitektonisk værdi - Ved en bæredygtig transformering af gamle bygninger der underbygge nye funktioner – Restaurering der kan fastholde og tiltrækker mennesker og bidrager til fællesskab – Ved en bæredygtig restaurering med udsøgte naturlige materialer – Så bygninger kan patinere smukt i harmoni med den gamle bygning.

Bevaringsværdig bygning

Vi restaurerer bevaringsværdige bygninger med fokus på bevarelse af original arkitektur, materialer og håndværk. Vores projekter omfatter restaurering af facader, tag, vinduer og interiører med respekt for bygningens historiske værdi.

Kongevejen 225 - Billede 1
Kongevejen 225 - Billede 2
Kongevejen 225 - Billede 3
Kongevejen 225 - Billede 4
Kongevejen 225 - Billede 5
Kongevejen 225 - Billede 6
Kongevejen 225 - Billede 7
Kongevejen 225 - Billede 8
Se projekt
Fyrkroen - Fyrvejen 29A, Gilleleje - Billede 1
Fyrkroen - Fyrvejen 29A, Gilleleje - Billede 2
Fyrkroen - Fyrvejen 29A, Gilleleje - Billede 3
Fyrkroen - Fyrvejen 29A, Gilleleje - Billede 4
Se projekt

Transformering

Vi transformerer historiske bygninger til nye formål med respekt for bygningens karakter og værdi. Vores projekter omfatter omdannelse af historiske bygninger til moderne brug, mens vi bevarer deres arkitektoniske identitet og historiske værdi.

Kulturværftet - madmarked rooftop restaurant

Transformering af de gamle værftshaller med indretning af ny restaurant på taget. De gamle værft haller som er indrettet til madmarked, ønskes suppleret med ny rooftop-restaurant på hallernes tag. Restauranten indrettes med køkken ind- og udvendig servering som har udsigt over Øresund fra Kulden til Kronborg.

Kulturværftet - madmarked rooftop restaurant - Billede 1
Kulturværftet - madmarked rooftop restaurant - Billede 2
Kulturværftet - madmarked rooftop restaurant - Billede 3
Kulturværftet - madmarked rooftop restaurant - Billede 4
Se projekt
Ballerup Ny Skole - Billede 1
Ballerup Ny Skole - Billede 2
Ballerup Ny Skole - Billede 3
Ballerup Ny Skole - Billede 4
Ballerup Ny Skole - Billede 5
Se projekt

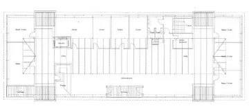
Ballerup Ny Skole

Transformering af Ballerup Ny Skole over flere etaper fra 2013 – 2018 med ny indskoling, industrikøkken, lærerfaciliteter og ombyg. af lokaler for ældste klasser.

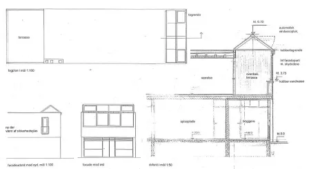
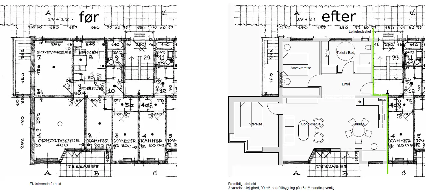
Gefionsparken Helsingør

Helhedsplan, grundlag for renovering af bebyggelsen af 101 lejligheder, med forslag til nye tilgængelighedsboliger og et fælleshus.

Gefionsparken Helsingør - Billede 1
Gefionsparken Helsingør - Billede 2
Gefionsparken Helsingør - Billede 3
Gefionsparken Helsingør - Billede 4
Gefionsparken Helsingør - Billede 5
Gefionsparken Helsingør - Billede 6
Gefionsparken Helsingør - Billede 7
Gefionsparken Helsingør - Billede 8
Gefionsparken Helsingør - Billede 9
Se projekt
Tønder rådhus - Billede 1
Tønder rådhus - Billede 2
Tønder rådhus - Billede 3
Tønder rådhus - Billede 4
Tønder rådhus - Billede 5
Tønder rådhus - Billede 6
Se projekt

Tønder rådhus

Transformering, udvidelse, renovering og energioptimering af rådhuset. Udarbejdet i 2013.

Emiliekildevej 15 i Charlottenlund

Ombygning i tre etaper. Ombygning af altan inddækning med glastag mv. Indretning af aftægtsbolig og ombygninger ejendommen. Projektering og udførelse i perioden 2005 – 2009.

Emiliekildevej 15 i Charlottenlund - Billede 1
Emiliekildevej 15 i Charlottenlund - Billede 2
Emiliekildevej 15 i Charlottenlund - Billede 3
Se projekt
Dyssegårdsskolen i Gentofte - Billede 1
Dyssegårdsskolen i Gentofte - Billede 2
Dyssegårdsskolen i Gentofte - Billede 3
Dyssegårdsskolen i Gentofte - Billede 4
Se projekt

Dyssegårdsskolen i Gentofte

Renovering og energioptimering af ovenlyset over hovedtrappen. Projektering, byggeledelse og tilsyn udført i 2012.

Renell Haderslev Vej 18 i Helsingør

Transformering af eks. Administrationsbygning med indretning af loftrum til adm. samt forslag til ny lagergerbygning til udlejning i mindre enheder. Forslag, udvikling, – og myndighedsbehandling udført i 2012.

Renell Haderslev Vej 18 i Helsingør - Billede 1
Renell Haderslev Vej 18 i Helsingør - Billede 2
Renell Haderslev Vej 18 i Helsingør - Billede 3
Renell Haderslev Vej 18 i Helsingør - Billede 4
Renell Haderslev Vej 18 i Helsingør - Billede 5
Se projekt